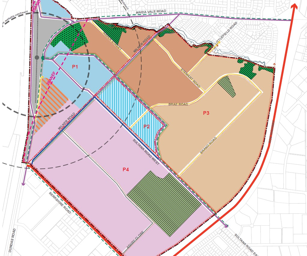
Explore the current maps for the HWS Residential Precinct.
The plan is a comprehensive planning document to facilitate the ongoing development within the residential precinct. Explore the plan here:
The City is undertaking an advocacy program to promote development within the HWS residential precinct.
The history of the development of the HWS Plan.
The Station Precinct is under the authority of Development WA. You can find their planning information via this link.
The Developer Contribution Plan provides details on the contribution developers will make to provide infrastructure within the precinct.